Principal
|
Tabla de Contenidos
|
Mapa General
|
Leyenda
La Solución de la Industria Inmobiliaria
L.S.C.A. Miguel Roman
mroman@vertisoft.com.mx
Principal
>
10. Áreas
>
10.4 Estadísticas
>
10.4.11 Antigüedad de Saldos Detallada
Anterior
Siguiente
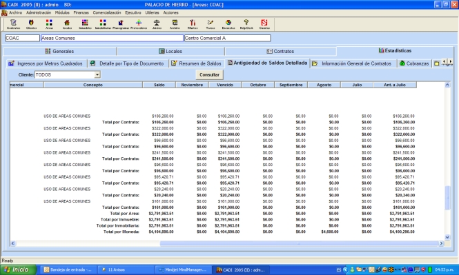
10.4.11
Antigüedad de Saldos Detallada
Esta vista permite acceder a resúmenes de antigüedad de saldos por mes, y meses atrás, totalizado por contrato, por área, por inmueble, por inmobiliaria, y por moneda
Arriba
Powered By CADI
Last updated:
16/11/2006